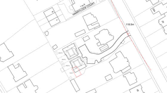
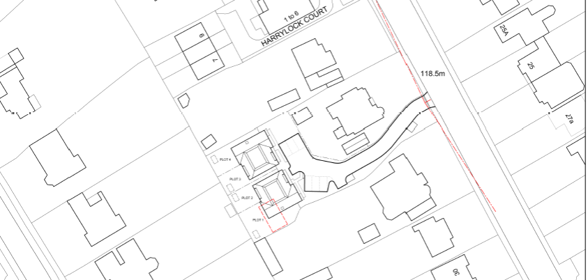
We are delighted to have introduced this site to a developer client who subsequently gained planning for 4 houses using access to the side of the property and its rear garden. With planning now granted  the option has been exercised and work will start early 2026.
If you own land or property and would like to enquire whether there is any development potential please contact one of our knowledgeable team who will be happy to offer a quick initial assessment.












